objektbeschreibung
Eine großzügige, renovierte Gewerbefläche in einem gepflegten Wohn- und Geschäftshaus in Stuttgart-Möhringen steht zur Vermietung. Diese Einheit eignet sich ideal als Verkaufsfläche (ausgenommen Lebensmittel), Praxis, Physiotherapie, Büro etc.
Bildergalerie
Ausstattung
– Erdgeschoss
– geräumige Ladenfläche mit zwei
verbundenen, offenen Räumen
– große Schaufensterfront
– renoviert und mit Vinylboden
ausgestattet
– gefliestes WC
– kleiner Pausenraum
- Bodenbelag
- Barrierefrei
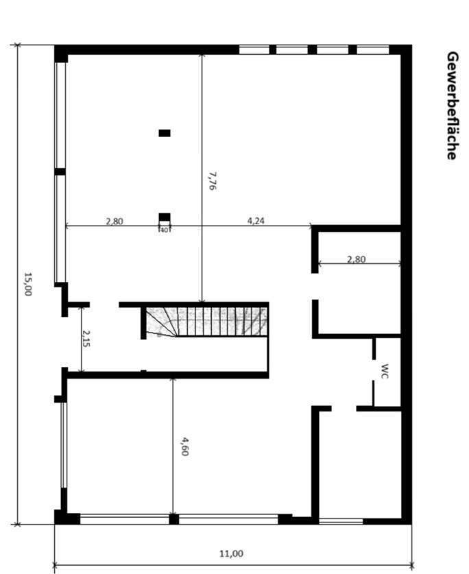
Grundriss
Sonstiges
- Ein Keller kann ebenfalls für 100,- EURO
dazu angemietet werden.
Lage
Zentrale Lage in Stuttgart-Möhringen. Alle Geschäfte des täglichen Bedarfs und öffentliche Verkehrsmittel sind schnell zu erreichen.
ENERGIEAUSWEIS
Energieausweis-Art: VERBRAUCH
Wesentlicher Energieträger: Öl
Energieeffizienzklasse: D

